HOME
ABOUT
Testimonials
GALLERY
Photos
Videos
COMMUNITIES
Enclave at Harvey (Knoxville, TN)
Harvest Meadow (North Knoxville, TN)
The Grove at Cedar Hills (Lenoir City, TN)
The Grove at Haven Hill (Lenoir City, TN)
Haven Hill (Lenoir City, TN)
Tennessee National (Loudon, TN)
Mill Branch Ridge
MODEL HOMES
QUICK MOVE-IN
SEARCH ALL HOMES
SEARCH SPECIFIC HOMES
Location
Floor Plans
Communities
Enclave at Harvey (Knoxville, TN)
Harvest Meadow (North Knoxville, TN)
The Grove at Cedar Hills (Lenoir City, TN)
The Grove at Haven Hill (Lenoir City, TN)
Haven Hill (Lenoir City, TN)
Tennessee National (Loudon, TN)
Collections
Freedom (First Time Home Buyers)
Legacy (Ranch-Style Homes)
Traditions (Classic Timeless Homes)
TOOLBOX
New Home Process
Design Studio
Warranty Overview
REALTORS
BLOG
CONTACT
Home
|
1529 Linden Leaf Lane
1529 Linden Leaf Lane
Property Details
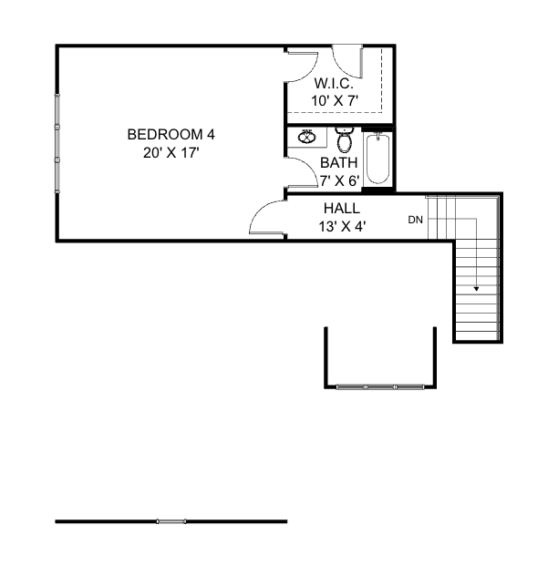
Cumberland Single Family Home with Study - Upper level
Quick Move-In Homes
4 Linden Leaf Lane, Knoxville TN
3 Bedrooms
2.5 Bathrooms
Starts at 2466 Sq.Ft.
*Elevations may vary based on community
Explore This Floorplan
Main Level
Upper Level
Stop By For A Visit
Interested In Learning More?
Contact Us