HOME
ABOUT
Testimonials
GALLERY
Photos
Videos
Communities
Enclave at Harvey (Knoxville, TN)
Harvest Meadow (North Knoxville, TN)
The Grove at Cedar Hills (Lenoir City, TN)
The Grove at Haven Hill (Lenoir City, TN)
Haven Hill (Lenoir City, TN)
Tennessee National (Loudon, TN)
MODEL HOMES
QUICK MOVE-IN
SEARCH ALL HOMES
SEARCH SPECIFIC HOMES
Price Range
Location
Floor Plans
Communities
Enclave at Harvey (Knoxville, TN)
Harvest Meadow (North Knoxville, TN)
The Grove at Cedar Hills (Lenoir City, TN)
The Grove at Haven Hill (Lenoir City, TN)
Haven Hill (Lenoir City, TN)
Tennessee National (Loudon, TN)
Collections
Freedom (First Time Home Buyers)
Legacy (Ranch-Style Homes)
Traditions (Classic Timeless Homes)
TOOLBOX
New Home Process
Design Studio
Warranty Overview
REALTORS
BLOG
CONTACT
Home
|
246 Bittersweet Lane
246 Bittersweet Lane
Property Details
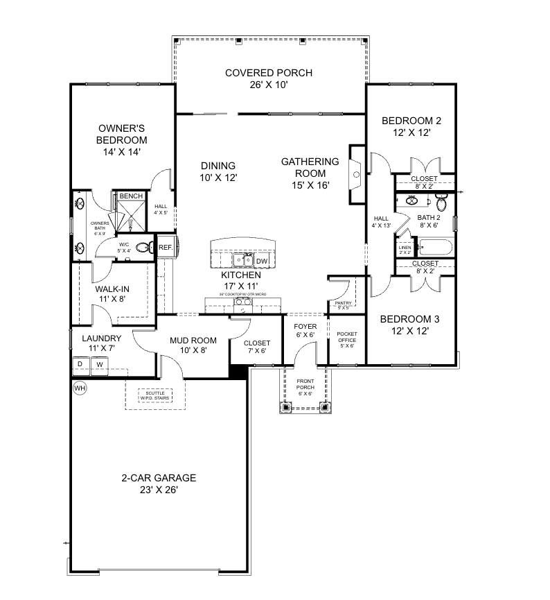
Laurel I Single Family Home
Quick Move-In Homes
246 Bittersweet Lane, Lenoir City TN 37771
3 Bedrooms
2 Bathrooms
Starts at 1956 Sq.Ft.
COMING SOON
Priced from $648,900
*Elevations may vary based on community
Explore This Floorplan
Main Level
Stop By For A Visit
Interested In Learning More?
Contact Us